We have SUCCESSFULLY participated in more than 300 projects
1117 W 26th Ct Riviera Beach, Fl 33404

Our Services

At Eurodrill America LLC, we develop and coordinate technical documentation for residential and commercial projects, delivering them with precision and professional quality.

Residential Blueprints

We develop complete and detailed construction blueprints for houses, multi-family buildings, and commercial spaces, fully customized to client needs and compliant with local building codes.

Remodeling and Renovation Blueprints

We redesign interior spaces such as bathrooms, kitchens, and living areas, improving functionality, comfort, and aesthetics in every project.

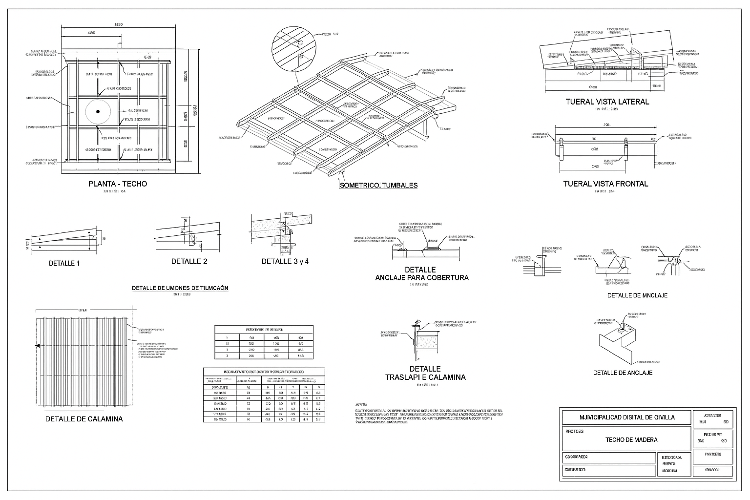
Roofing Services

We provide design and planning for roof installations or renovations, ensuring safety, durability, and full compliance with local construction standards.

TOP